Window Scaping Center (Retail Showroom) Rollout
When Pella rolled out their Window Scaping Center showroom program, they chose Star to be their trusted partner to design, fabricate and install across the United States.
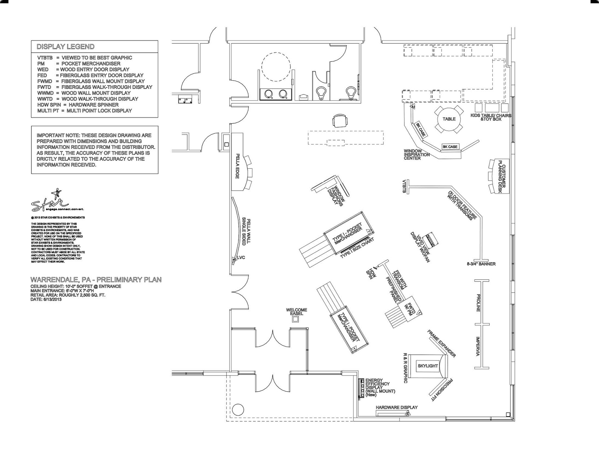
My role was to provide showroom layout studies based on the selected fixtures, building and Branch’s criteria. Once showroom plan is finalized, I provided electrical, paint and carpeting plans for the Branches and their General Contractor.
I have done many showroom layouts during my role at Star. Below is an example of the showroom I worked on.
I have done many showroom layouts during my role at Star. Below is an example of the showroom I worked on.
Showroom Layout Studies


Final Showroom Plans


